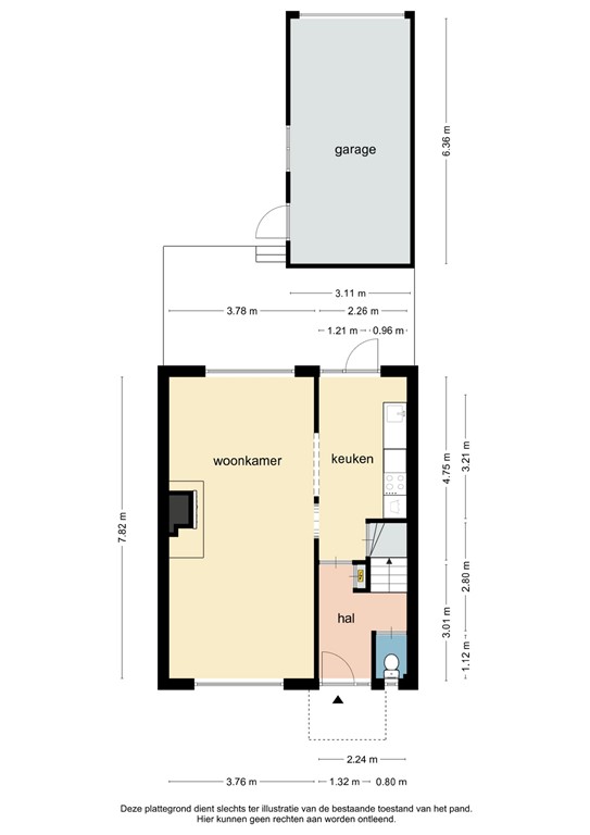
Beschrijving

In Brunssum-Noord, rustig gelegen tussenwoning met garage en tuin. Nabij basisschool, lokaal winkelcentrum, oprit Buitenring/N276 en A76. Indeling: entree, hal, meterkast,  toiletruimte, doorzon woonkamer met open haard en parketvloer, half-open keuken met diverse apparatuur, kelderkast. 
Buiten: voortuin, achtertuin, garage. Eerste verdieping: overloop, 3 slaapkamers met parketvloeren en moderne badkamer met ligbad, douchecabine, wastafel in badmeubel en 2e toilet. Tweede verdieping: middels vaste houten (steek)trap bereikbare ruime bergzolder (nokhoogte ca. 2.05) met cv ketel (type HR-combi, eigendom, 2023). Vrijwel volledig voorzien van aluminium kozijnen met dubbel glas en rolluiken. Energielabel C. Perceel 144, woonopp. 95 m2. Bouwjaar 1968

Indeling

entree, hal, meterkast, toiletruimte, doorzon woonkamer (29m2) met parketvloer en open haard, half-open keuken (9m2) met oven, afzuigkap, koel/vriescombinatie en 4-pits gaskookplaat, geiser

Eerste verdieping

overloop, 3 slaapkamers (8.5, 14 en 10m2), alle voorzien van parketvloeren, moderne badkamer (6m2) met ligbad, douchecabine, 2e toilet en wastafel in badmeubel

Tweede verdieping

middels vaste houten (steek)trap bereikbare bergzolder met cv ketel (type HR-combi, eigendom, 2023)

Tuin

voortuin, achtertuin, achterom bereikbaar middels tuinpoortje en met garage (6.30*3.10), achtergelegen autopad

Bijzonderheden

vrijwel volledig voorzien van rolluiken en van aluminium kozijnen met dubbel glas. Nabij basisschool, lokaal winkelcentrum met o.a. 2 supermarkten, nabij oprit 
Buitenring/N276 en A76. Indien c.v-ketel en/of warmwatervoorziening een huurtoestel betreft, dient koper de huurovereenkomst over te nemen.
De gebruikelijke bankgarantie/waarborgsom van 10% is van toepassing. De koper dient deze uiterlijk binnen 2 weken nadat het financieringsvoorbehoud is verlopen bij de desbetreffende notaris te deponeren.

Kenmerken