Beschrijving
GEZIEN DE ENORME BELANGSTELLING KUNNEN VOOR DEZE WONING INMIDDELS GEEN REACTIES MEER WORDEN AANGENOMEN OF AFSPRAKEN GEPLAND.
Instapklare, geheel gemoderniseerde 2 onder 1 kap woning met aan- en uitbouw, tuin met 2 overkappingen en zwembad, grote garage met kap/zolder, oprit voor 3 auto’s. Nabij oprit N276 en N300 (Buitenring), op loopafstand van centrum Brunssum, bassischool en sportschool. Indeling: entree, hal, meterkast, toiletruimte, woonkamer (70 m2) met aanbouw met lichtstraat en openslaande tuindeuren naar grote overkapping, werkkamer/kantoor met airco, bijkeuken en open keuken met schiereiland en alle apparatuur. Buiten: voortuin, achtertuin met grote aangebouwde overkapping en vrijstaande overkapping, zwembad, koivijver en grote garage met kap/zolder en toilet, oprit voor 3 auto’s. Perceel is via oprit achterzijde bereikbaar. Eerste verdieping: overloop, 2 slaapkamers -1 met airco en moderne badkamer met dubbele wastafel in badmeubel, 2e toilet, inloopdouche en ligbad. Tweede verdieping: middels vaste trap en lichte overloop bereikbare royale zolder met zolderkamer met dakkapel en airco, c.v.-berging en bergruimtes. Volledig voorzien van kunststof kozijnen dubbel glas en deels rolluiken. Voorzien van 3 airco’s en van vloer- en dakisolatie en de aan-en uitbouw tevens van gevelisolatie.) Energielabel C. Perceel 375 m2, woonopp. 139 m2. Bouwjaar 1950.
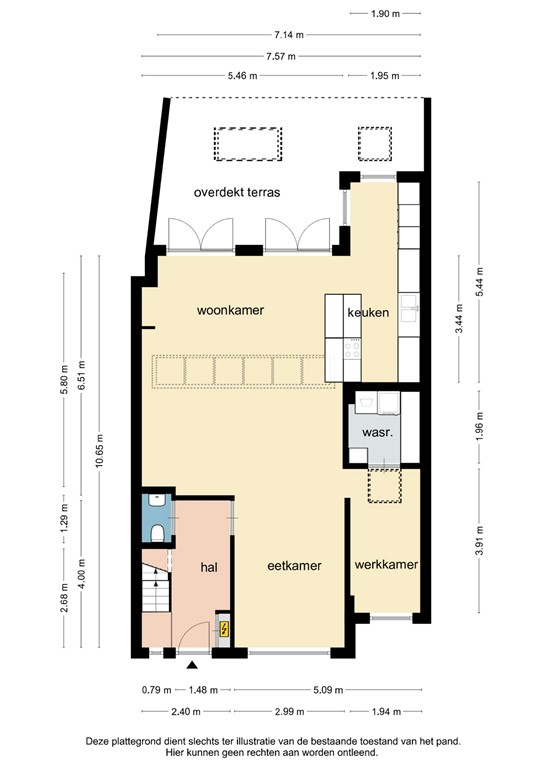
Indeling
entree, hal, meterkast met ruim voldoende groepen, lichte en ruime woonkamer (70 m2) met aanbouw met lichtstraat en openslaande tuindeuren naar de grote overkapping, werkkamer/kantoor (7,6 m2) met airco, bijkeuken met aansluitingen wasmachine en droger, open keuken (10,6 m2) met schiereiland en veel kastruimte, koelkast, vriezer, oven, combi-oven, afzuigkap, vaatwasser en 5-pits gaskookplaat. Woonkamer en keuken zijn voorzien van vloerverwarming.
Eerste verdieping
overloop, 2 slaapkamers (10.5 en 12.5m2), 1 met airco en moderne badkamer (6m2) met vloerverwarming, inloopdouche, ligbad, toilet en dubbele wastafel in
badmeubel
Tweede verdieping
middels vaste trap via lichte overloop naar royale zolder met zolderkamer (23m2) met airco en dakkapel, c.v.berging (type HR-combi, eigendom, 2016) en aparte bergruimtes
Overige verdiepingen
provisiekelder (4.00*2.40)
Tuin
voortuin, gezellige achtertuin met diverse zitgelegenheden waardoor je altijd van de zon of schaduw kunt genieten en met grote aangebouwde overkapping (23m2), vrijstaande overkapping (12m2), koivijver, zwembad, grote garage (36m2) met kap/zolder, elektrische sectionaalpoort en toilet, ruime oprit voor 3 auto’s. Toegang tot perceel via oprit aan achterzijde.
Bijzonderheden
Volledig voorzien van kunststof kozijnen, deels rolluiken. Nabij basisschool, sportschool, ruime parkeerplaats, en oprit N276 en Buitenring.
De gebruikelijke bankgarantie/waarborgsom van 10% is van toepassing. De koper dient deze uiterlijk binnen 1 week nadat het financieringsvoorbehoud is verlopen bij de desbetreffende notaris te deponeren.
Plattegronden
maastrichterstraat 44 brunssum 2D BG.jpg
maastrichterstraat 44 brunssum 2D verd.jpg
maastrichterstraat 44 brunssum 2D zold.jpg
maastrichterstraat 44 brunssum 2D keld.jpg
maastrichterstraat 44 brunssum 2D gar.jpg