1.jpg 2.jpg 4.jpg 3.jpg 5.jpg 6.jpg 7.jpg 8.jpg 9.jpg 10.jpg 11.jpg 12.jpg 13.jpg 14.jpg 15.jpg 16.jpg 17.jpg 18.jpg 19.jpg 20.jpg 21.jpg 22.jpg 23.jpg 24.jpg 25.jpg 26.jpg 27.jpg 28.jpg 29.jpg 30.jpg 31.jpg 32.jpg 33.jpg 34.jpg 35.jpg 36.jpg 37.jpg hertogstraat 64 brunssum 2D BG.jpg hertogstraat 64 brunssum 2D verd.jpg hertogstraat 64 brunssum 2D zold.jpg Kadastrale kaart - Brunssum D 15471.jpg
Verkocht

Verkocht: Hertogstraat 64, 6441 HD Brunssum

€ 219.000,- k.k.
Type object Woonhuis, eengezinswoning, tussenwoning
Perceeloppervlakte 144 m²
Woonoppervlakte 95 m²
Aanvaarding In overleg
Status Verkocht

Notitie

Algemeen

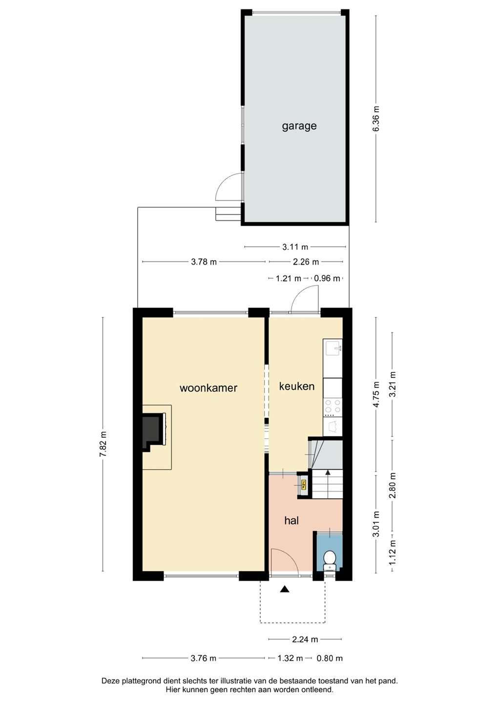
In Brunssum-Noord, rustig gelegen tussenwoning met garage en tuin. Nabij basisschool, lokaal winkelcentrum, oprit Buitenring/N276 en A76. Indeling: entree, hal, meterkast, toiletruimte, doorzon woonkamer met open haard en parketvloer, half-open keuken met diverse apparatuur, kelderkast.
Buiten: voortuin, achtertuin, garage. Eerste verdieping: overloop, 3 slaapkamers met parketvloeren en mode... Meer informatie
  • Kenmerken

    Alle kenmerken
    Type object Woonhuis, eengezinswoning, tussenwoning
    Bouwperiode 1968
    Status Verkocht
    Aangeboden sinds Woensdag 1 oktober 2025
  • Locatie

Kenmerken

Overdracht
Referentienummer 05281
Vraagprijs € 219.000,- k.k.
Status Verkocht
Aanvaarding In overleg
Aangeboden sinds Woensdag 1 oktober 2025
Laatste wijziging Vrijdag 24 oktober 2025
Bouw
Type object Woonhuis, eengezinswoning, tussenwoning
Soort bouw Bestaande bouw
Bouwperiode 1968
Dakbedekking Dakpannen
Type dak Zadeldak
Isolatievormen Grotendeels dubbel glas
Oppervlaktes en inhoud
Perceeloppervlakte 144 m²
Woonoppervlakte 95 m²
Inhoud 384 m³
Oppervlakte overige inpandige ruimten 12 m²
Oppervlakte externe bergruimte 20 m²
Indeling
Aantal bouwlagen 3
Aantal kamers 4 (waarvan 3 slaapkamers)
Aantal badkamers 1 (en 1 apart toilet)
Locatie
Ligging In woonwijk
Tuin
Type Achtertuin
Hoofdtuin Ja
Oriëntering Noord-oost
Heeft een achterom Ja
Staat Normaal
Tuin 2 - Type Voortuin
Tuin 2 - Oriëntering Zuid-west
Tuin 2 - Staat Normaal
Energieverbruik
Energielabel C
CV ketel
CV ketel Nefit Proline HRC 24/CW4
Warmtebron Gas
Bouwjaar 2023
Combiketel Ja
Eigendom Eigendom
Uitrusting
Aantal parkeerplaatsen 1
Aantal overdekte parkeerplaatsen 1
Warm water CV-ketel, Geiser
Verwarmingssysteem Centrale verwarming, Open haard
Ventilatie methode Natuurlijke ventilatie
Keukenvoorzieningen Inbouwapparatuur
Badkamervoorzieningen Douche, Ligbad, Toilet, Wastafelmeubel
Parkeergelegenheid Vrijstaande stenen garage
Heeft een open haard Ja
Tuin aanwezig Ja
Heeft een garage Ja
Heeft rolluiken Ja
Kadastrale gegevens
Kadastrale aanduiding Brunssum D 1547
Perceeloppervlakte 144 m²
Eigendomsituatie Eigen grond

Beschrijving

In Brunssum-Noord, rustig gelegen tussenwoning met garage en tuin. Nabij basisschool, lokaal winkelcentrum, oprit Buitenring/N276 en A76. Indeling: entree, hal, meterkast, toiletruimte, doorzon woonkamer met open haard en parketvloer, half-open keuken met diverse apparatuur, kelderkast.
Buiten: voortuin, achtertuin, garage. Eerste verdieping: overloop, 3 slaapkamers met parketvloeren en moderne badkamer met ligbad, douchecabine, wastafel in badmeubel en 2e toilet. Tweede verdieping: middels vaste houten (steek)trap bereikbare ruime bergzolder (nokhoogte ca. 2.05) met cv ketel (type HR-combi, eigendom, 2023). Vrijwel volledig voorzien van aluminium kozijnen met dubbel glas en rolluiken. Energielabel C. Perceel 144, woonopp. 95 m2. Bouwjaar 1968

Indeling

entree, hal, meterkast, toiletruimte, doorzon woonkamer (29m2) met parketvloer en open haard, half-open keuken (9m2) met oven, afzuigkap, koel/vriescombinatie en 4-pits gaskookplaat, geiser

Eerste verdieping

overloop, 3 slaapkamers (8.5, 14 en 10m2), alle voorzien van parketvloeren, moderne badkamer (6m2) met ligbad, douchecabine, 2e toilet en wastafel in badmeubel

Tweede verdieping

middels vaste houten (steek)trap bereikbare bergzolder met cv ketel (type HR-combi, eigendom, 2023)

Tuin

voortuin, achtertuin, achterom bereikbaar middels tuinpoortje en met garage (6.30*3.10), achtergelegen autopad

Bijzonderheden

vrijwel volledig voorzien van rolluiken en van aluminium kozijnen met dubbel glas. Nabij basisschool, lokaal winkelcentrum met o.a. 2 supermarkten, nabij oprit
Buitenring/N276 en A76. Indien c.v-ketel en/of warmwatervoorziening een huurtoestel betreft, dient koper de huurovereenkomst over te nemen.
De gebruikelijke bankgarantie/waarborgsom van 10% is van toepassing. De koper dient deze uiterlijk binnen 2 weken nadat het financieringsvoorbehoud is verlopen bij de desbetreffende notaris te deponeren.

Plattegronden

Sluiten

Recent bekeken